close
在升級電腦後終於發揮硬體強大的功能,除了感動還是感動
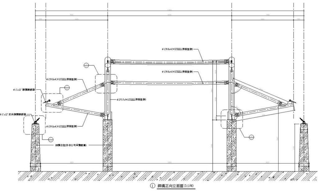
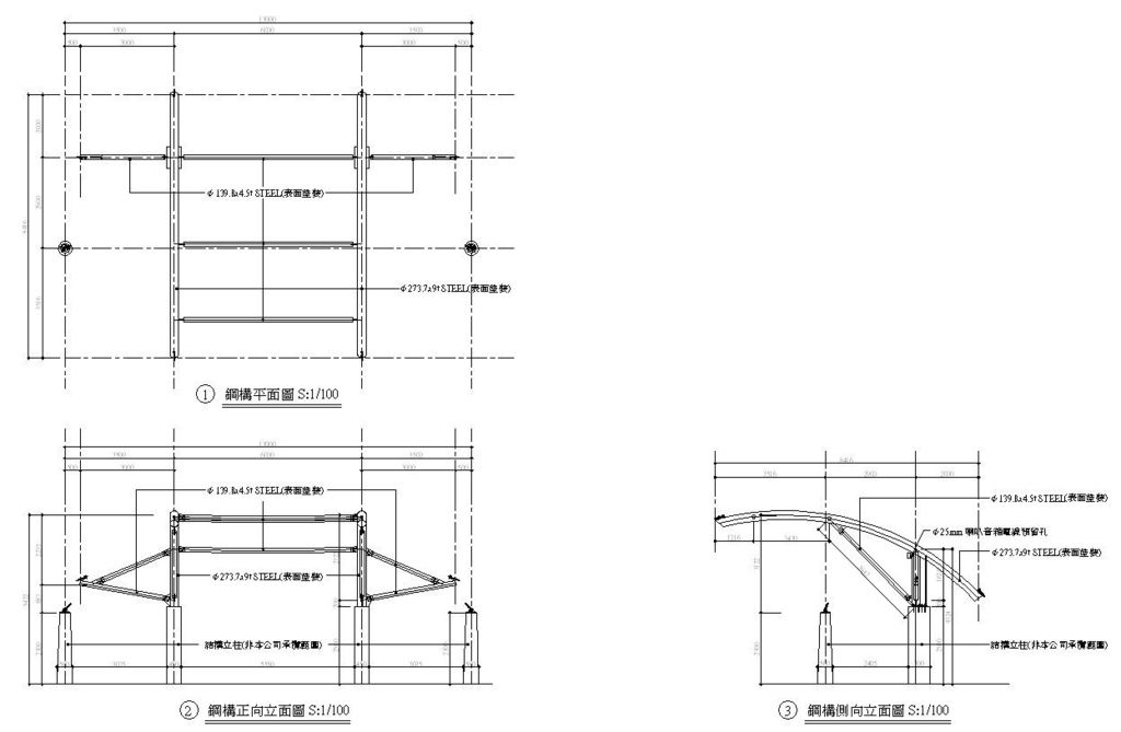
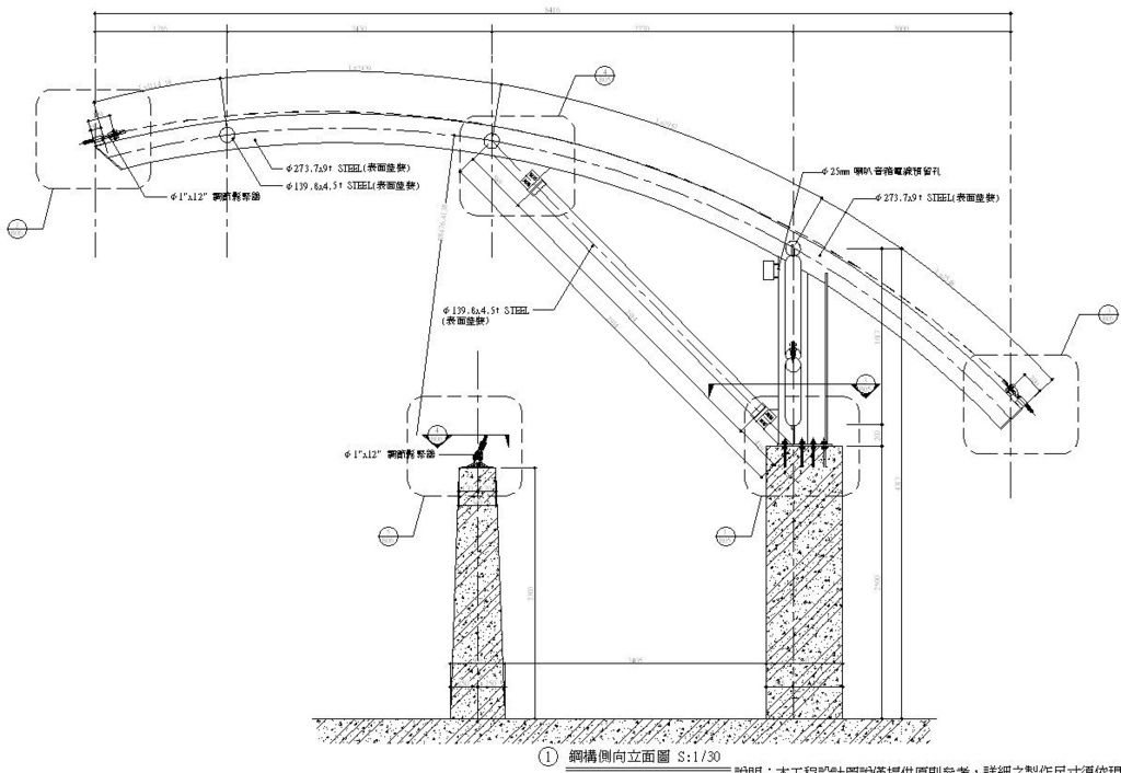
作品 :司令台膜結構雨庇
使用版本:Autocad 2008 CHT
建模時間:不可考(以前自己玩)
彩現時間:5分44秒(簡報)
作品介紹:第一次使用大量的樹葉與樹幹模型,並配合陽光及材質
文章標籤
全站熱搜
在升級電腦後終於發揮硬體強大的功能,除了感動還是感動
作品 :司令台膜結構雨庇
使用版本:Autocad 2008 CHT
建模時間:不可考(以前自己玩)
彩現時間:5分44秒(簡報)
作品介紹:第一次使用大量的樹葉與樹幹模型,並配合陽光及材質
留言列表